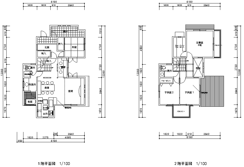
国産材住宅プロジェクト J-CUBE NO.1

I邸(神戸市灘区)

施工 水野建設設計株式会社

オール国産材使用の木造2階建ての住宅です。
健康、エコロジーにこだわるように努力しています。
はせがわ事務所の国産材プロジェクト第1号です。
国産材住宅ですが、今回はあえて和風住宅のような雰囲気にはしませんでした。
究極のリカちゃんハウスがコンセプトです。(笑)

 

家づくり無料冊子プレゼント家づくり無料カウンセリング相談家づくり相談