施工 株式会社明和工務店
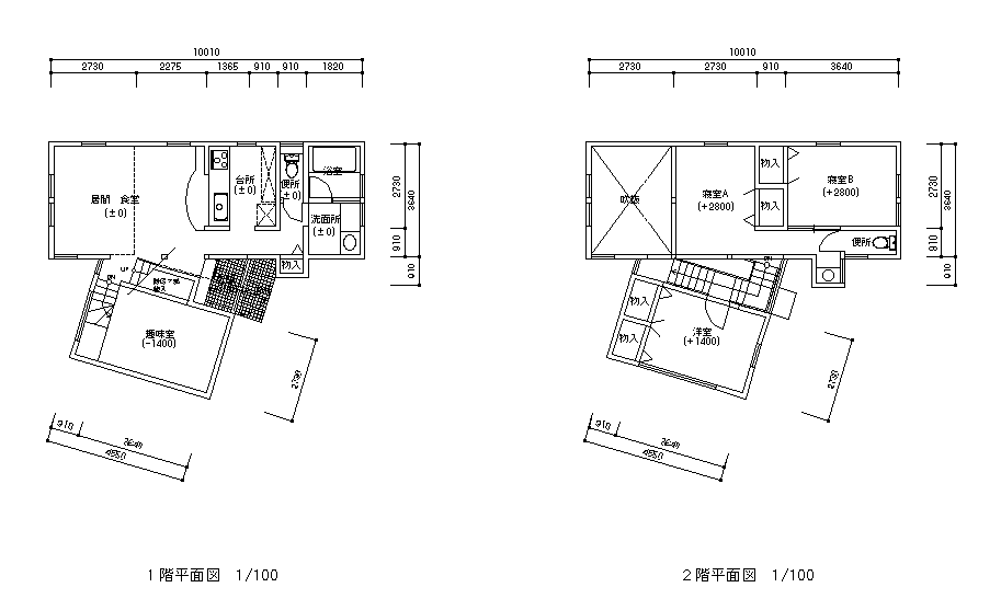
スキップフロア形式の小さな住宅です。
空間の立体構成が面白い家になりました。
![]() |
|
はせがわ事務所でスキップフロアを初めて計画しました。
|
![]() |
|
階段の形状がとても面白くなっています。
|
![]() |
|
木をふんだんに使うのは、はせがわ事務所の得意技です。
|
![]() |
|
インテリアをたっぷり御覧ください。
|
![]() |
|
夜景です、2つの箱の間から見える内部はとても暖かな空間です。
|
![]() |

![]() ![]() ![]() |