施工 井上工務店
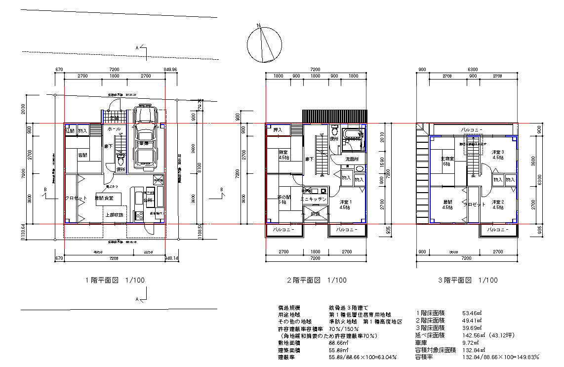
第1種低層住居専用地域での鉄骨3階建て、2世帯住宅です。
いかにコンパクトに多くの部屋を確保することを課題に設計しました。
|
Hさんとの出会いは、私達のホームページがきっかけです。ホームページを見ていただいて、連絡いただき、事務所に訪問していただきました。最初の訪問はHさんとお母さんのお二人でした。狭小敷地の2世帯住宅が希望でしたので、はせがわ事務所としては、初めての仕事でかなりのワクワクでした。 そして、ご自宅に訪問、ご両親、ご夫婦、3人のお子さんを見て、私はデザインを普通の住宅のデザインにする事を決断!!普通ってなんやねん!!って思われるかもしれませんね(笑)Hさんご家族はゴクゴク普通のサラリーマン世帯でとっても楽しい幸せなご家族だったので、家が主張するのではなく、ご家族が近所の方々や、お子さんの学校のお友達が遊びにいらして、あまりびっくりしないような家の方が良いんじゃないかなと言う判断です。 総床面積があまりとれないのに、部屋数は沢山必要でしたので、小さな部屋をうまくつなげたり、からめたりしながら、家族のコミュニティを大切にした、プランニングにしました。 遊びに行くと、家族の楽しい笑い声が響き渡る家が、そこにありました。 |
|
![]() |
北西側からの写真です。 |
![]() |
南側からのファサードです。 |
![]() |
リビングから吹き抜けを見上げたところです。 |
![]() |
リビングから南の窓を見たところ。 |
![]() |
階段です。三角の開口が強調されています。 |

![]() ![]() ![]() |